Commercial Real Estate

Basics

  • Category:
  • Type:
  • Status:
  • Bathrooms: 0
  • Lot size: 14040, 14040 sq ft
  • Year built: 1950
  • County: Miami-Dade
  • MLS ID: A11841328

Description

  • Description:

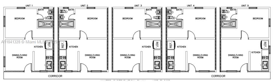
    38-39 54 41 HOLLEMAN PARK PB 8-23 LOTS 10 & 11 BLK 10 LOT SIZE 108.000 X 130 OR 19423-1199 1200 1 Fully renovated 20-unit multifamily in a high-demand Miami rental market. Each 1-bed/1-bath unit is being completely rebuilt with new roof, impact windows, kitchens, baths and electrical. A true gut renovation—like new construction. Located minutes from Brickell and Coral Gables in a rapidly transitioning neighborhood with strong tenant demand and redevelopment upside. Turnkey investment with excellent long-term potential. Zoned T6-8-O—Miami’s highest density—ideal for future redevelopment. Contact listing owner for pro forma and OM.

    Show all description

Building Details

  • Structure Type: MultiFamily
  • Water Source: Public
  • Sewer: Other
  • Covered Spaces: 0

Amenities & Features

  • Window Features: ImpactGlass
  • Cooling: WallWindowUnits
  • Heating: WindowUnit,WallFurnace

Expenses, Fees & Taxes

  • Tax Annual Amount: $59,155
  • Tax Year: 2024

Miscellaneous

  • List Office Name: LoKation
  • Listing Terms: Cash,Conventional,Other

Ask our real estate expert about this property

Phone
By clicking the «REQUEST INFO» button you agree to the Terms of Use and Privacy Policy

This -type commercial real estate is located in FL, Miami was built in 1950, and is listed at $8,500,000.

Share this property

Copy

Or share with

Reset password

Enter your email address and we will send you a link to change your password.